A-2F 傢俱配置參考圖
C-2F 傢俱配置參考圖
A-4F 傢俱配置參考圖
4F-C 傢俱配置參考圖
C-6F 傢俱配置參考圖
A 傢俱配置參考圖
B 傢俱配置參考圖
C 傢俱配置參考圖
拾壹到拾伍層平面圖
玖到拾層平面圖
捌層平面圖
柒層平面圖
陸層平面圖
伍層平面圖
肆層平面圖
參層平面圖
貳層平面圖
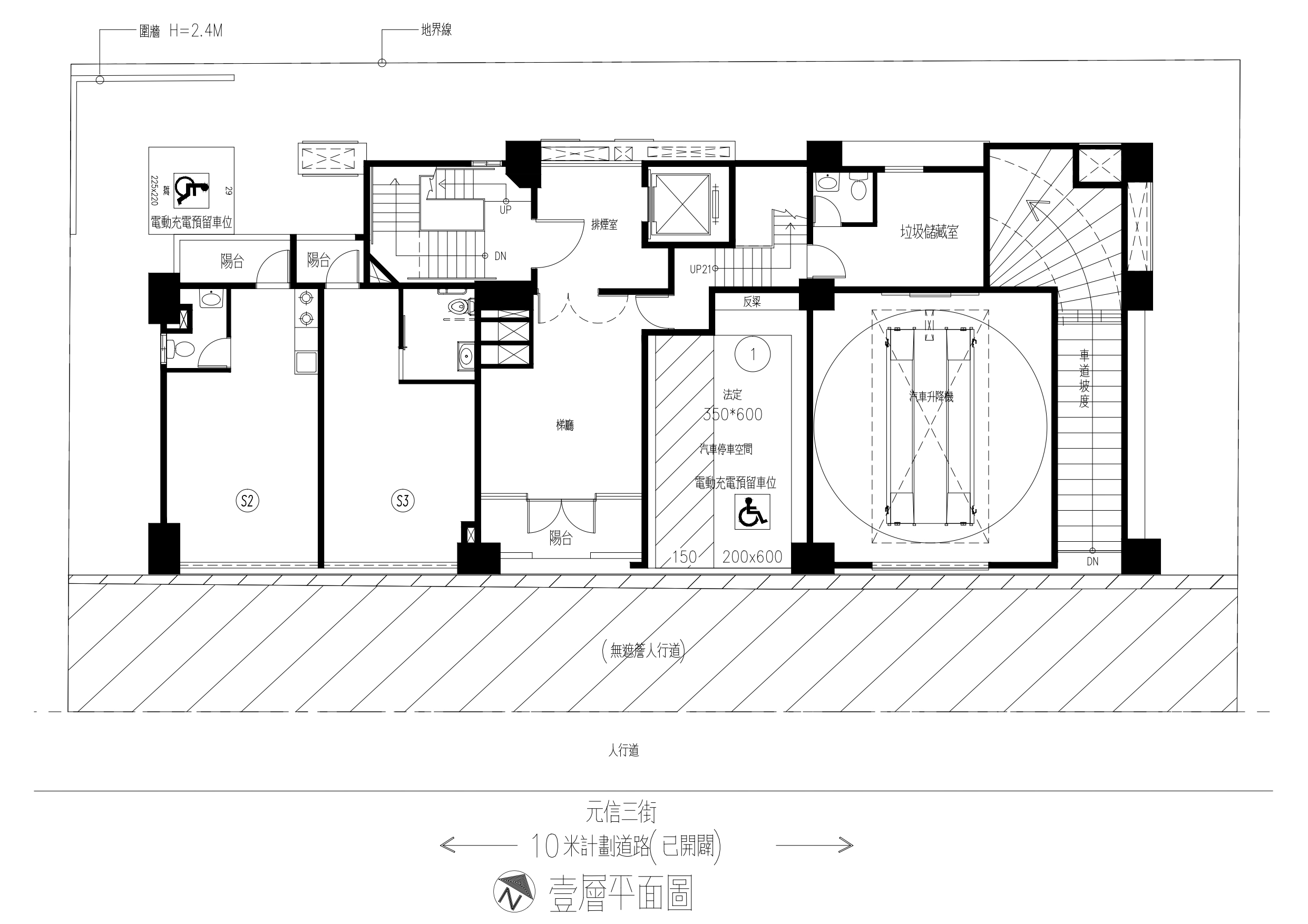
壹層平面圖
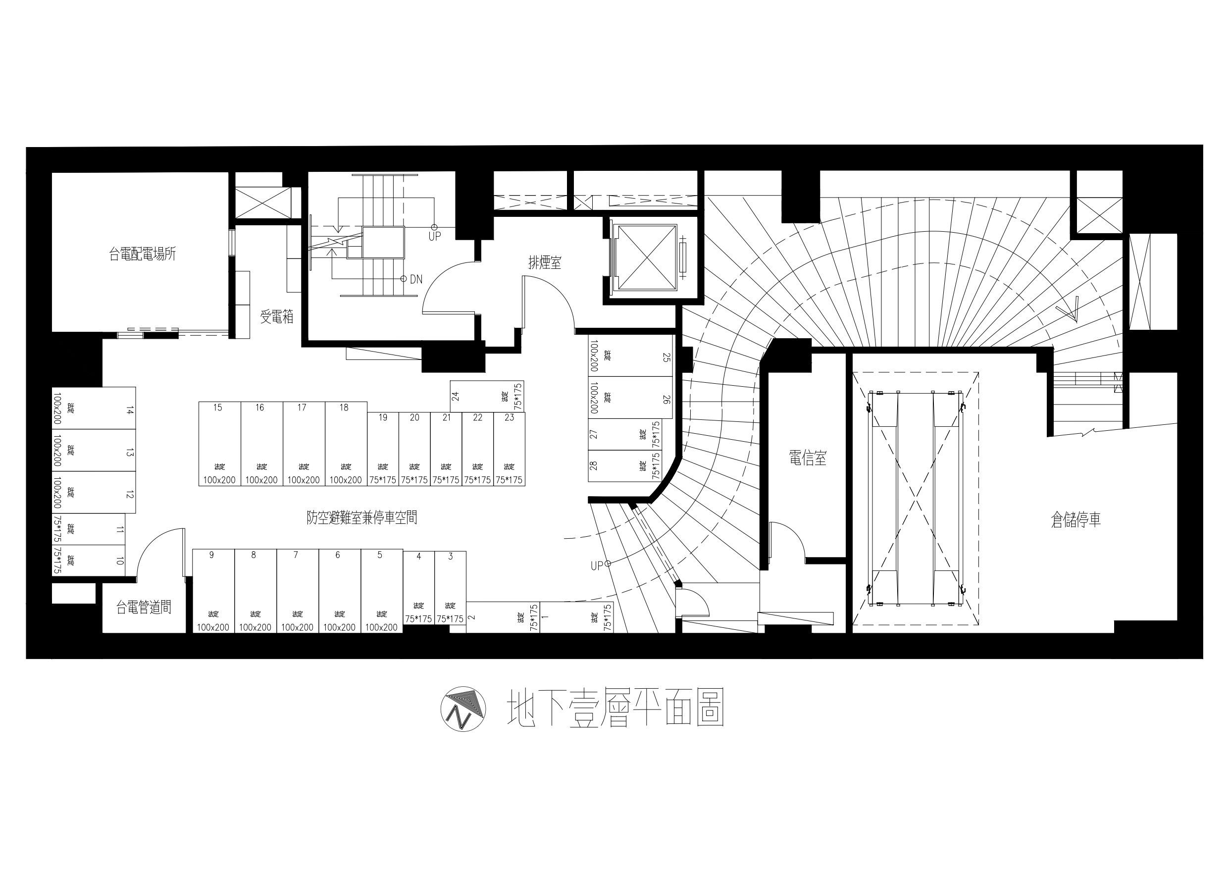
地下壹層平面圖